Indlæser...

Lukes støttemur med plantekasser og trin

Luke havde brug for en skræddersyet struktur for at forbinde området mellem terrassen og græsplænen under hans løbende renovering af haven. I stedet for at bygge en trappe med standardtrin, greb han muligheden for at integrere plantekasser, så han kunne skabe en farverig og spændende sti mellem de to områder. Det var vigtigt for ham, at designet passede bedst muligt ind i området, uden at der ville opstå huller på hver side.

Da han var færdig med at bygge terrasse på bagsiden af huset, var der 1,3 meters højdeforskel mellem toppen og bunden af skråningen. Det var også blevet et lidt mærkeligt område, hvor der ikke rigtigt var nogen videre plads på hver side af åbningen. Resten af Lukes have var græsplæne, hvor der ikke var afsat plads til planter.

Lukes idé var at bygge nogle trin med niveaudelte plantekasser på hver side, som samtidig skulle fungere som en støttemur. Det vil skabe nogle ekstra niveauer til planter. Han overvejede at bruge jernbanesveller og selv at bygge det hele, men det skrånende design ville kræve et omhyggeligt arbejde for at sikre stabiliteten (for ikke at nævne en masse savearbejde!). Luke valgte også at få en lokal landskabsarkitekt til at lave et tilbud på en løsning med sten, men det ville blive alt for dyrt, og det ville ikke se naturligt ud.

Planlægning af haven

Efter at have overvejet jernbanesveller og løsninger i sten, var Luke ikke overbevist om, at det var gode løsninger. Så han gik online for at finde inspiration til støttemure og trin. Da Luke fandt WoodBlocX-websitet, indså han, at plantekasser med trin ville være en nem løsning takket være vores modulopbyggede system med blokke. Han sendte nogle mål og nogle skitser af sin idé samt billeder af haven til vores designteam via vores gratis designservice.

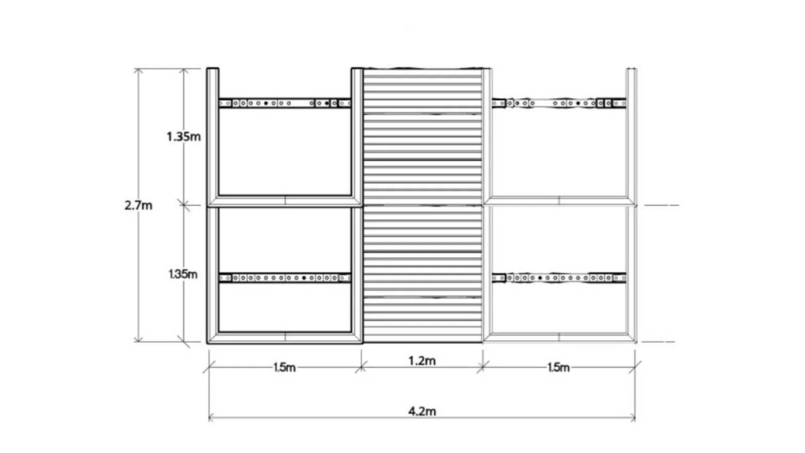
Vores ekspertteam af WoodBlocX-designere gik i gang med at designe en skræddersyet struktur til Lukes skråning, så den kunne monteres uden at skulle flytte alt for meget jord. Toppen af strukturen var designet til at være i samme niveau som terrassen. Det endelige design bestod af to store niveauinddelte plantekasser (til at fungere som støttemur mod jorden) på hver side af seks trin. Plantekasserne øverst i designet udnyttede de eksisterende strukturer på grunden, så der skulle bruges færrest mulige WoodBlocX-blokke, og det var med til at holde de samlede omkostninger nede.

Klargøring og montering

Inden Luke gik i gang med at bygge, klargjorde han området til designet. Selvom designet tog højde for skråningen, var Luke nødt til at grave ud til de indvendige støtteblokke, så de kunne installeres plant og fladt efter jorden. Støtteblokkene sikrer, at hele strukturen står fast på underlaget. Se denne video for at se klargøringen af området!

Den nederste del af skråningen skulle også være jævn, så den første række WoodBlocX kunne monteres korrekt. Under udgravningen fandt Luke ud af, at hans kloakrør var placeret lige i det område. Der blev lavet en udskæring i den ene blok, så den kunne gå hen over røret, og så røret ikke ville blive beskadiget.

Færdiganlagt have

Den færdige WoodBlocX-struktur er et fantastisk eksempel på, hvordan vores designere kan skabe en struktur, der passer perfekt ind i din have, og de behøver ikke at komme på besøg i haven! Lukes design løser flere formål som at tilbageholde jorden på skråningen, den indeholder trin, så det er nemt at komme mellem terrassen og græsplænen, og den giver en masse plads til at plante lige det, Luke har lyst til. Det traditionelle afslutningslag har givet designet et elegant udseende. Og det bedste er, at WoodBlocX-træet er trykimprægneret, så strukturen er nem at vedligeholde og vil holde i mange år! Se denne video for at se Luke bygge sit design.

Luke tilplantede de kvadratiske plantekasser med flotte planter, som er blevet valgt for at give faste farver året rundt. Ved hjælp af trinnene i midten er planteområdet fordelt ligeligt, og der er nem adgang til at fjerne ukrudt og til almindelig vedligeholdelse.

 

Samling af WoodBlocX


"Til at starte med var jeg lidt nervøs for at skulle bygge hele strukturen selv", fortæller Luke. "Men da jeg havde læst vejledningen, var det nemt at følge den til at bygge hvert lag! Da det første og andet lag var på plads, gik det hurtigt at bygge strukturen. Træblokkene var nemme at håndtere, og det var nemt at slå dyvlerne i. De indvendige støtteblokke sørgede for at gøre strukturen med støttemur og plantekasser virkelig robust. Jeg bruge lidt over en uge på at bygge strukturen efter arbejde og i weekenden. Jeg er virkelig glad for det færdige resultat. Træets naturlige udseende står godt til mit hus, og det samler græsplænen og min nye terrasse. Jeg har fået plantet og glæder mig til at se, når planterne vokser til og gør området endnu mere hyggeligt."


Design en niveaudelt støttemur med plantekasser

WoodBlocX kan bruges til at tilbageholde jord og samtidig skabe plads til planter. Støttemurene er nemme at bygge, og de kræver ikke brug af elværktøj. Vores BlocX-blokke i træ er det perfekte produkt til haver med skråninger, hvor alternative løsninger som regel er for dyre.