Gode råd til dræning for WoodBlocX-støttemure

Hvis du er i tvivl om, hvorvidt du skal sørge for dræning bag din WoodBlocX-støttemur, så er svaret JA. I denne artikel beskriver vi, hvordan du vælger den rette folie til at sikre, at du har de rette materialer klar, når du skal bygge.
Dræning bag muren
Det er vigtigt, at du sørger for dræning bag din WoodBlocX-støttemur – eller enhver anden støttemur. Vi anbefaler, at du bruger lette ærtesten og bruger dem til at fylde to tredjedele af højden på støttemuren. Resten kan du fylde op med din foretrukne jord. Hvis du bygger en terrasse oven på støttemuren, kan du fylde halvdelen med ærtesten eller et andet drænlag, og du bør derefter fylde resten med komprimeret stabilgrus.
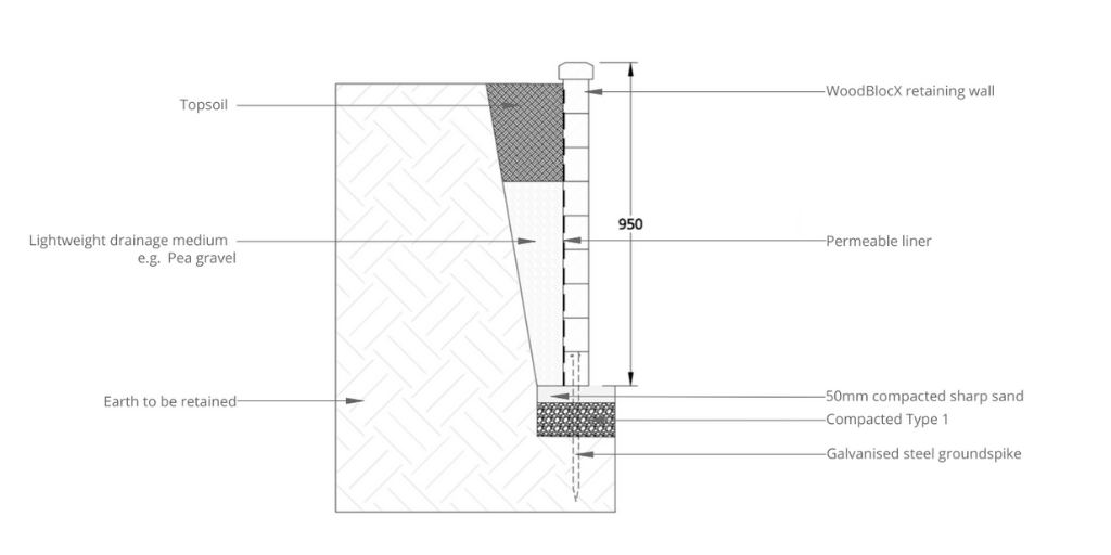
Hvis din have har tendens til at opsamle større mængder overfladevand, eller hvis du har brug for ekstra dræn, kan du tilføje et drænrør i bunden af muren. Det kræver, at du graver og tilføjer et perforeret drænrør, der skal lede vandet væk fra muren til enten et hoveddræn eller et sted, der kan optage vandet. Derefter fylder du op med stabilgrus og dækker det over. I illustrationen herunder kan du se et tværsnit af en WoodBlocX-mur, der viser, hvordan du skal tilføje dræn bag hovedkonstruktionen.

Folie
En fugtspærre er det bedste valg til vores støttemure. Alle vores produkter bygges på samme måde ved at samle en række mindre BlocX-træblokke. Det efterlader små åbninger, hvor vand og luft kan trænge igennem konstruktionen, og vi anbefaler derfor, at du monterer en folie, der dækker hele den indvendige del af muren.
Vi anbefaler, at du monterer folien lige inden, du sætter afslutningslaget på støttemuren. Folien skal fastgøres til konstruktionen, og den bedste måde, du kan gøre det på, er ved at justere folien efter afslutningslaget på BlocX. Brug en hobbykniv eller en stærk saks til at skære små indsnit i folien, så den kan trækkes ned over dyvlerne og holdes på plads. Derefter kan du placere folien over hele den indvendige side af muren og over støtteblokkene. Du skal muligvis bruge flere folier til processen. Det afhænger af længden af din støttemur.
Kan jeg købe folier fra WoodBlocX?
Ja! Vi har folier af høj kvalitet, som kan beskytte både støttemure og andre WoodBlocX-konstruktioner.
- Fugtspærre
- Fremstillet af 100 % genbrugsplast
- 4 x 5 meter (20 m2)
- Tykkelse 0,25 mm
- Fungerer som fugtspærre mellem WoodBlocX-tømmeret og jorden
- Skal monteres for at forlænge levetiden på din støttemur
Folien til højbede fås kun i én størrelse: 4 x 5 meter (20 m2)
Fordele ved at vælge WoodBlocX som støttemur:
Holdbar og stærk
Alle vores trækomponenter er fremstillet af skovfyr af høj kvalitet. Vi bruger aldrig kernetræet, som er svagere. Træet er trykimprægneret, og da BlocX har forborede huller, trækker behandlingen ind i næsten 100 % af træet.
Konstruktionerne holdes sammen af dyvler, så de fremstår som én stærk enhed. Hver dyvel kan modstå op til 0,9 ton ren kraft, og det betyder, at konstruktionen i nogle situationer er stærkere end beton og kan modstå både tryk og kompression. Vores støttemure revner ikke som følge af bevægelser i jorden og frost.
Alle vores strukturer er bygget til at holde mindst 15 år, når de samles som beskrevet i vores vejledning. Men de forventes at kunne holde i op til 30 år – vi anbefaler altid, at du monterer en folie.


Nemt at bygge
Det kræver ikke nogen særlige færdigheder at bygge en WoodBlocX-støttemur, så de fleste kan bygge dem selv. Du slipper for tunge løft, når du bygger med WoodBlocX. Alle delene kan nemt bæres til byggestedet.
Alle kunder modtager en trinvis vejledning til deres specifikke produkt, inden de skal i gang med at bygge. Vi har også oprettet en serie med videovejledninger, hvor du kan se, hvordan du skal bygge de enkelte dele. Og vores venlige kundeservice er klar til at hjælpe via telefon, e-mail eller live chat.
Attraktivt og bæredygtigt
Træet er groft savet for at give en flot naturlig finish, som passer til både moderne og traditionelle haver. Kunderne kan vælge mellem to typer afslutningslag, hvor det moderne flugter med konstruktionen, mens det traditionelle afslutningslag har et lille overhæng. Træet falmer naturligt til grå toner med årene, og selvom der ikke er brug for årlig vedligeholdelse eller behandlinger, kan du vælge at male træet, så det passer til din stil i haven.
Vi får træet fra bæredygtige skovbrug, og vores trykimprægnering er fri for kemikalier, der kan trænge ud fra træet. Dyvlerne er fremstillet af genbrugsplast, og vi arbejder hele tiden på at reducere vores CO2-udslip i alle processer.







