Idéer til WoodBlocX i nyanlagt have

Her har vi samlet en masse idéer til, hvordan du kan skabe en mere inspirerende have. Når du flytter ind i et nyt hjem med nye møbler, føles det fantastisk. Men nyanlagte haver er ofte lidt halvkedelige. Det kan du heldigvis nemt lave om på.
Vi bliver tit kontaktet af nye husejere, der hurtigt er blevet kede af en uinspirerende have med græs og fliser. De ønsker en flot have, der er nem at holde, og som har funktionelle områder som højbede, havemøbler, støttemure og trin, som de kan have glæde af året rundt.
Med vores populære kombination af gratis designservice og et modulopbygget system, der er nemt at samle, sparer du både tid og penge. Vores designer bruger dine idéer, mål og dit budget til at skabe en perfekt WoodBlocX-løsning til din have.
Vores modulopbyggede WoodBlocX-system gør det hurtigt og nemt at samle dine konstruktioner. Du slipper for en masse forarbejde og behøver ikke at have erfaring med at bygge. Du skal blot følge den trinvise vejledning. WoodBlocX er et hyggeligt weekendprojekt, som de fleste kan klare selv eller sammen med et par venner.

Nyanlagt have
Vi har samarbejdet med nye husejere med haver i alle former og størrelser. Herunder finder du idéer til små og store haver, haver med skråninger, skæve vinkler og endda forhaver.
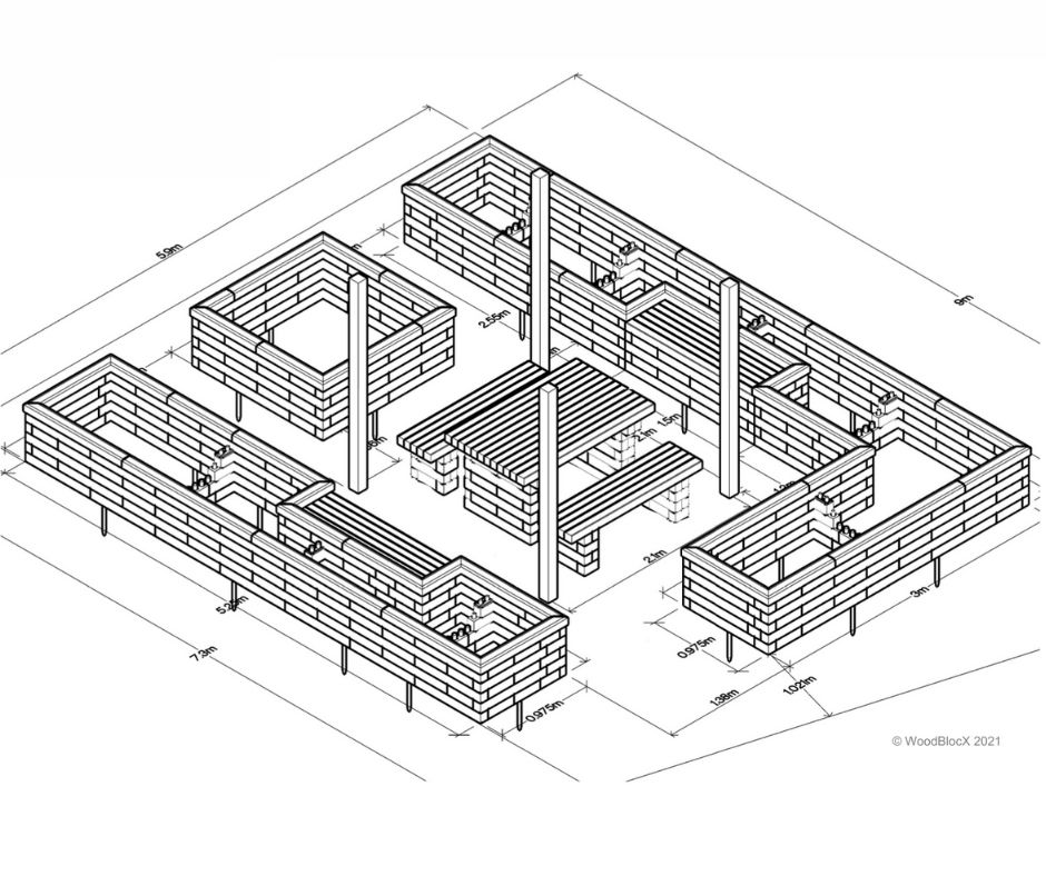
Vi designer kun løsninger ved hjælp af vores WoodBlocX-produkt. Vi udarbejder ikke komplette planteoversigter eller komplette havedesign med gårdhaver, terrasser eller stier.
Idéer til nyanlagt have med skråning


Selv de mest stejle skråninger kan tæmmes med WoodBlocX-trin og store højbede. De fungerer rigtig godt til haver med skråninger og giver masser af plads til planter.
Hvis du har mindre skråninger, kan en lav støttemur gøre en stor forskel. Eller du kan skabe et fladt og lettere tilgængeligt område ved at udnytte skråningen, f.eks. ved at skabe plads til et planteområde og fortsætte skråningen på den anden side med WoodBlocX’ niveauinddelte højbede, trin og integrerede siddepladser. Du kan bruge vores flotte højbede på alle typer underlag, bl.a. fliser.


Idéer til lille nyanlagt have


Det kan være en udfordring at få udnyttet pladsen i en lille have. Ved at kombinere højbede med siddepladser kan du skabe ekstra plads med en multifunktionel mikrohave.
Brug højbede med forskellige højder og former for at gøre haven mere interessant. Og brug dekorative kanter til at få planter op i højden, hvor de også er nemmere at passe. Brug vores gratis designservice for at få hjælp til at planlægge din have.


Idéer til nyanlagt have med flere niveauer


Udnyt forskellige niveauer i din have, eller tilføj niveauer. Byg et højbed med flere niveauer på en flad terrasse for at skabe blikfang, eller gør brug af forskellige niveauer i en ældre have for at udnytte området bedre.


Idéer til en ny forhave


Højbede kan bruges til at adskille indkørslen fra huset. Med vores kanter kan du skabe en perfekt finish langs stier og rundt om træer. Tilføj nogle stedsegrønne buske eller små træer for at skabe et flot indgangsparti til dit hus.


Praktiske råd fra Calum, WoodBlocX-designer

"Vi er altid glade for udfordringer med at skabe designs til nye haver! Ofte bliver vi præsenteret for et helt blankt lærred, men haver findes i alle former og størrelser, og vi oplever tit, at der skal arbejdes med komplekse vinkler og udfordrende terrænforskelle. Vores designer kan tage højde for begge dele takket være det modulopbyggede WoodBlocX-system, det smarte design og muligheden for at skræddersy vinkler. Så vi kan forholdsvis nemt sikre, at vores designs passer til den enkelte have."
"Vi elsker at arbejde tæt sammen med kunderne, da det giver det bedste resultat. Vi yder al den support, vi kan, og ændringer eller problemer, der opstår i sidste øjeblik, får vi altid løst hurtigt og effektivt."





